Izsoļu arhīvs
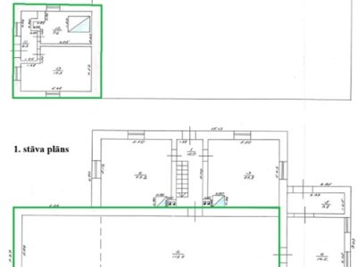
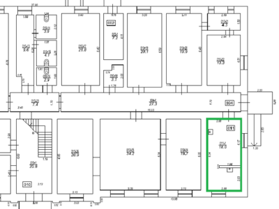
Izsolīs nomas tiesības uz neapdzīvojamām telpām nekustamajā īpašumā “Vangas klubs”, Vanga, Laidu pagasts, Kuldīgas novads, 147.9 m²
Kuldīgas novada pašvaldība mutiskā izsolē izsolīs nomas tiesības uz neapdzīvojamām telpām nekustamajā īpašumā “Vangas klubs”, Vangā, Laidu ...















